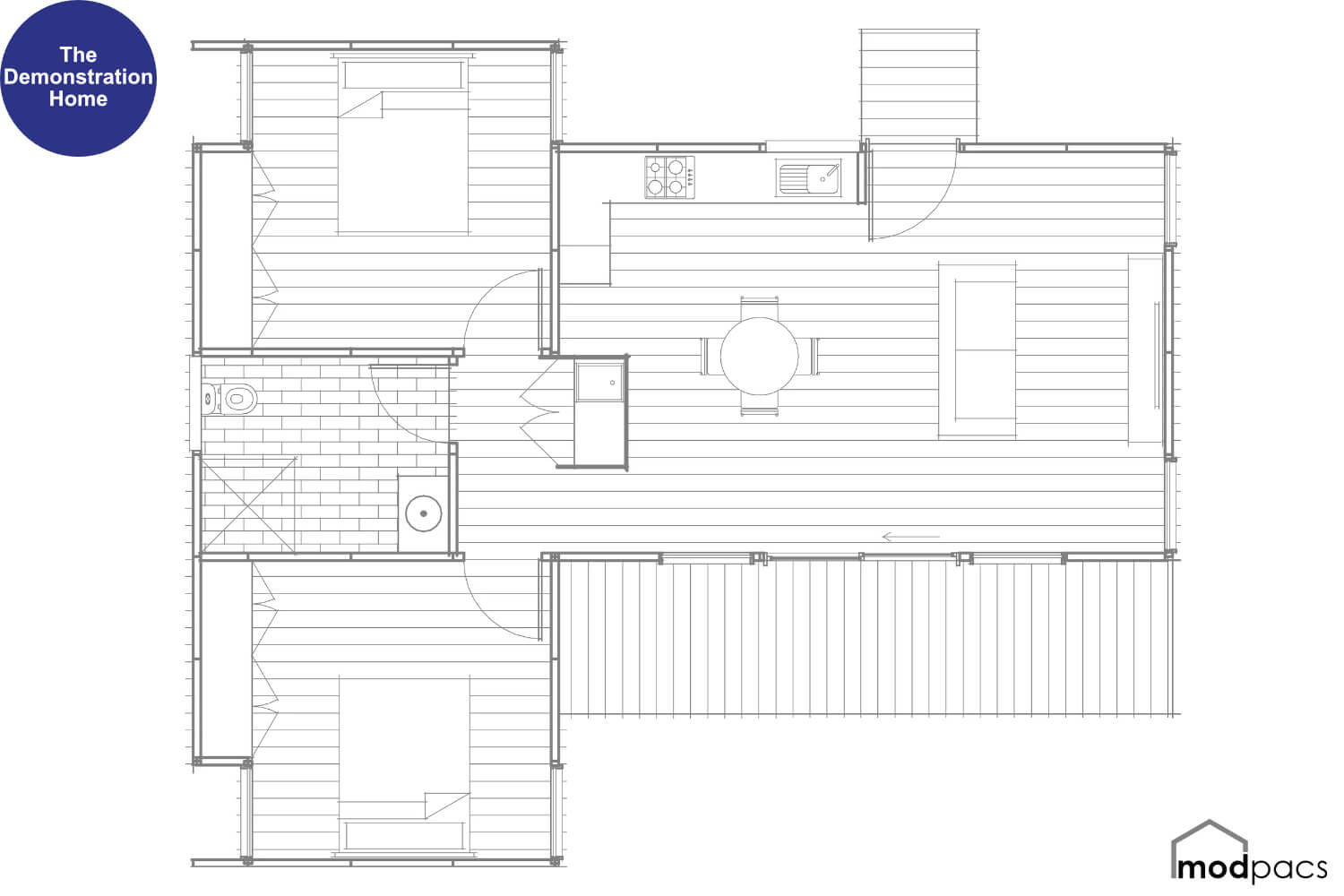
The Villa Maria
Internal Area 110㎡ | External Area 14㎡
2 Bedroom | 2 Bathroom
The Villa Maria design exemplifies the remarkable versatility of the Modpacs product, showcasing its ability to adapt to a wide range of architectural styles, functional requirements and project needs.
Perfect small home or granny flat.
The Bay Islander
Internal Area 129㎡ | External Area 13㎡
3 Bedroom | 2 Bathroom
Embracing modern design trends, this innovative design highlights the adaptability of two-story construction, making it an ideal solution for challenging and space-restricted sites.
3 bedrooms (first floor accessible) with two bathrooms and modern fixtures and fittings.

